Дома под ключ в Петрозаводске
Отзывы из Яндекс Карт
4.9
108 отзывов
Дополнительные услуги 88%
2 154 оценок
Комплектации 89%
1 535 оценок
Планировки 90%
2 484 оценок
Проекты 93%
2 231 оценок
С
Валерий Светличный03/31/2026 г.
Зимой строили мне дом 7х8,5 из бруса, морозы были под минус 20. Работали без выходных, но брус кое-где замёрз, весной повело. Приехали подтянули стяжками, вроде выровнялось.
С
Сергей Воробьёв02/03/2026 г.
Обрадовало, что на мой дом 6х8 с баней внутри собрали вообще без единого гвоздя — на нагелях. Стоит монолит. Единственное, окна на втором свете заказали не открывающиеся, моя ошибка. Но компания предупреждала. Для дачи отлично.
С
Зарина М.04/28/2025 г.
Отдельное спасибо хочется сказать прорабу, который вел наш объект, человек исключительно ответственный и педантичный, всегда на связи, все объяснит и подскажет, с такими людьми строить одно удовольствие.
Отзывы из Google Карт
4.8
65 отзывов
Дополнительные услуги 88%
2 154 оценок
Комплектации 89%
1 535 оценок
Планировки 90%
2 484 оценок
Проекты 93%
2 231 оценок
С
Святослава Егорова07/21/2025 г.
Я очень переживала, как пройдет стройка, так как участок у нас с сложным рельефом. Но ваши технологи и строители оказались на высоте — грамотно организовали площадку, сделали надежный фундамент, и теперь наш каркасный дом стоит как влитой. Спасибо, что развеяли все мои страхи.
Отзывы из 2гис
4.9
48 отзывов
Дополнительные услуги 88%
2 154 оценок
Комплектации 89%
1 535 оценок
Планировки 90%
2 484 оценок
Проекты 93%
2 231 оценок
С
Юлиан Губанов05/13/2026 г.
Баню 4х5 строил под ключ с печкой и крыльцом. Всё сделали аккуратно, но дверь в парилку повело через месяц - заменили по гарантии без вопросов. Руководитель объектом Сергей постоянно на связи был, даже в выходные отвечал.
С
Дина Петухова04/16/2026 г.
Не обошлось без мелких косяков, конечно. Например, забыли сделать закладную под проводку для подсветки крыльца, пришлось потом штробить. Но это мелочи, в целом работой довольны, жить можно.
С
Олеся З.01/18/2026 г.
Заказала дом 110 м2 с верандой и балконом для ПМЖ. При подписании акта обнаружила, что на веранде нет остекления хотя по проекту было. Долго спорили, в итоге сделали за половину цены. Осадок остался, но дом красивый.
С
Алина Чистякова03/30/2025 г.
Это уже второй наш проект с "Брус дома" — сначала они построили нам баню, а теперь и дом, и оба раза мы были настолько довольны, что даже не рассматривали других подрядчиков, зная их ответственность и высокий класс исполнения.


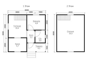
Проект №93 Каркасный дом 6х6

каркас из строганой доски
Создайте свой план для этого проекта
и отправьте его нам на расчет в один клик.
Каркасный дом (150 мм) 6х6 Толщина утепления 150 мм 1601900 Заказать
Каркасный дом (200 мм) 6х6 Толщина утепления 200 мм 1751900 Заказать

Воспользуйтесь нашим планировщиком, чтобы получить свою личную планировку.

С использованием планировщика можно сделать планы, схемы, чертежи, эскизы дома с эркером, мансардой, с одной, двумя или тремя спальнями. Вы получите индивидуальный проект, 100% отвечающий вашим требованиям.

Работая над проектом будущего дома, можно подобрать вид кровли. Крышу можно сделать четырехскатной, двускатной и вальмовой. Двухскатную считают наиболее популярной у малометражных построек.

Популярные на данный момент размеры домов: мини - до 50 кв. М (как правило, 1-этажные дома); компактные - от 70 до 100 м2 (обычно 2х этажные); большие постройки - начиная от 150м2 и более.

Строим дуплексы - большие современные каркасные постройки с 2-мя входами на несколько семей. Дома строятся сразу для двух хозяев и поделены на две половины, каждая половина с отдельным входом.


Наши работы

Перейти в галерею


Комплектация

Площадь застройки: 36 м2
Длина: 6 м
Ширина: 6 м
Общая площадь: 58 м2
Исполнение Под ключ (с отделкой)
Фундамент Свайно-винтовой или ж/б сваи (рассчитываются отдельно).
Гидроизоляция фундамента Рубероид в два слоя.
Основание (обвязка) Из обрезного бруса 150х150 мм. 150х200 мм. согласно выбранной толщине утепления. Торцевая доска строганая 45х145/45х195+/-5 мм. согласно выбранной толщине утепления. Обработка антисептиком.
Цокольное перекрытие Строганая доска камерной сушки 45х145/45х195+/-5 мм. с шагом 590 мм. Обработка антисептиком.
Пол черновой Обрезная доска камерной сушки 20х100 мм.
Влаго-ветрозащита чернового пола Мембрана Ондутис А100.
Внешние стены Стойки каркаса из строганой доски камерной сушки 45х145/45х195+/-5 мм. с шагом 590 мм. Верхняя двойная и нижняя обвязки из строганой доски камерной сушки 45х145/45х195+/-5 мм. Разгрузочный ригель из строганой доски 45х145+/-5 мм. Укосины из строганой доски 20х95 мм.
Перегородки Стойки каркаса из строганой доски камерной сушки 45х95+/-5 мм. с шагом 590 мм. Верхняя двойная и нижняя обвязки из строганой доски 45х95+/-5 мм. Разгрузочный ригель из строганой доски камерной сушки 45х145+/-5 мм. Укосины из строганой доски камерной сушки 20х95 мм.
Сборка каркаса На гвозди.
Высота от пола до потолка Дом одноэтажный: 2,5 м. Дом с мансардой: 1-ый этаж- 2,5 м.
2-ой этаж (мансарда)- 2,3 м.
Дом в полтора и два этажа:
1-ый этаж 2,5 м.
2-ой этаж 2,4 м. в полутораэтажном доме
2,5 м. в двухэтажном доме.
Внешняя отделка стен Имитация бруса камерной сушки, сорт АВ, толщиной 17 мм. Монтаж через строганый брусок камерной сушки 45х45+/-5 мм. (вентилируемый фасад). Влаго-ветрозащитная мембрана- Ондутис А100.
Внутренняя отделка стен, перегородок Евровагонка камерной сушки, сорт АВ, толщиной 12,5 мм. по строганой рейке 20х40+/-5 мм. либо ГКЛ 12,5 мм.
Отделка потолка Евровагонка камерной сушки, сорт АВ толщиной, 12,5 мм. по строганой рейке 20х40+/-5 мм. либо ГКЛ 12,5 мм.
Пол чистовой Шпунтованная доска камерной сушки толщиной 35-36 мм. сорт АВ. по строганой рейке 20х40+/-5 мм. либо шпунтованная ДСП 16 мм. по разряженной обрешётке из строганой доски камерной сушки 20х95+/-5 мм.
Утепление (пол, потолок) Минеральная вата Knauf 150/200 мм. согласно выбранной толщине утепления.
Утепление стен Плитный утеплитель Rockwool, толщиной 150/200 мм. согласно выбранной толщине утепления.
Звукоизоляция перегородок Плитный утеплитель Rockwool, толщиной 100 мм.
Пароизоляция (стены, перегородки, пол, потолок) Плёнка Ондутис R70. Дополнительная герметизация нахлёстов/примыканий пароизоляционной плёнки клейкой лентой Delta.
Окна Двухкамерные стеклопакеты ПВХ белого цвета, профиль 60 мм. В комплекте: отливы, подоконники, москитные сетки.
Двери Входная- металлическая, утеплённая (Россия). Межкомнатные- филёнчатые.
Наличники на окна и двери Наличник деревянный, строганый, камерной сушки 70-90 мм. с двух сторон.
Лестница (при наличии второго этажа) Деревянная, одно или двухмаршевая. Перила- заводские резные, балясины- заводские точеные, устанавливаются стартовые точёные столбы. Ступени 40х200 мм. Тетива лестницы- 90х140 мм.
Крыша Двускатная, ломаная или вальмовая в соответствии с проектом.
Стропильная система Выполнена из строганой доски камерной сушки 45х145/45х195+/-5 мм. Шаг установки стропил 590 мм.
Обрешётка Выполняется из строганой доски камерной сушки толщиной 20х95+/-5 мм. Шаг крепления обрешетки 350 мм. Контробрешётка выполняется из строганого бруска камерной сушки 45х45+/-5 мм. Крепится по стропилам (вентиляционный зазор).
Подкровельная мембрана Ондутис А100
Кровельное покрытие (на выбор) Металлочерепица 0,45 мм. Цвет на выбор.
Фронтоны (при наличии) Каркас из строганой доски камерной сушки 45х145/45х195+/-5 мм. Обшиваются имитацией бруса камерной сушки, сорт АВ, толщиной 17 мм. Монтаж через строганый брусок камерной сушки 45х45+/-5 мм. (вентилируемый фасад). Влаго-ветрозащитная мембрана- Ондутис А100. Монтаж вентиляционных решёток.
Свесы крыши Ширина 400 мм. Подшиваются вагонкой камерной сушки, сорт АВ.
Терраса/балкон (при наличии) Устанавливаются опорные столбы из строганного бруса камерной сушки 140х140 мм.
Отделка потолка террасы/балкона Евровагонка камерной сушки толщиной 12,5 мм. сорт АВ.
Пол террасы/балкона Шпунтованная доска камерной сушки толщиной 35-36 мм. сорт АВ.
Ограждение террасы/балкона Перила- строганая доска. Балясины- точеные, фигурные. Либо ограждение в скандинавском стиле. Устанавливаются ступени у входа.
Допуск на геометрические параметры Составляет +/- 50 мм по длине с каждой стороны.
Допускается стыковка имитации бруса, вагонки и половой доски По всему периметру стен дома (если ширина и длина дома более 6,0 метров). Вагонки и доски пола в каждой отдельной комнате.
Допуски по имитации бруса, вагонке, доске +/- 5 мм.
В стоимость включена Доставка комплекта материала в радиусе 500 км. от г. Пестова Новгородской области и сборка дома на вашем участке.
Гарантия 5 лет.
Бытовка строительная 2,0х3,0 м. каркасно-щитовая. Стоимость 23000 руб. Остаётся на участке Заказчика.
Туалет 1,0х1,0 м. каркасно-щитовой. Стоимость 12000 руб. Остаётся на участке Заказчика.
Генератор Стоимость аренды на весь срок строительства 15000 руб. ГСМ за счёт Заказчика.

Постройка дома может осуществляться в 2-х вариантах: под усадку, когда сруб отстаивается в течение определенного времени и под ключ.

В холодное время года надежнее строить в морозную погоду, чтобы каркас не промок, летом - не под дождем.

Оптимальными для дачи или сада являются домики на винтовых сваях, на нашем сайте имеются одноэтажные и полуторатажные дома.

Если вы собираетесь жить постоянно, можем предложить надежные и очень теплые коттеджи и дома на плитных и ленточных фундаментах.

Имеется два размера утепления: 150 мм и 200 мм. Каркасные дома с утеплителем 200 миллиметров получаются теплее, но стоят дороже.

Дополнительные услуги


Наша компания предлагает большой выбор проектов загородных домов, возводимых по каркасной технологии. Данный метод строительства позволяет в очень короткие сроки сдать дом «под ключ». Все эксплуатационные характеристики при этом остаются на высоком уровне. Жить в таком доме будет уютно и комфортно.

Основой любого дома служит фундамент. Поскольку стены каркасного дома имеют незначительный вес, то применяют ленточный фундамент неглубокого заложения. Это существенно снижает затраты.

Проект 93 – полутораэтажный каркасный дом с .

Дом имеет размеры 6х6 м. и занимает площадь 58 кв.м.. В доме всегда будет светло – во всех помещениях предусмотрены двойные стеклопакеты. Размеры комнат достаточны для комфортного загородного проживания. Крыша дома двускатная из ондулина предложенной расцветки: коричневой, зеленой или красной.

Наряду со строительством по типовым проектам, мы готовы выполнить заказ в Петрозаводске с учётом любых пожеланий клиента. 


Популярные проекты


Дома из бруса 6х5 Бани из бруса 6х9 Маленькие бани из бруса
хит продаж
Тип:
Общая площадь: 2
2605900
от 2481900
хит продаж
Тип: с маленькой террасой
Общая площадь: 2
1198900
от 1141900
Дома из бруса

Заказать или задать вопрос



Заказать или задать вопрос

Заказать звонок