Дома под ключ в Петрозаводске
Отзывы из Яндекс Карт
4.9
76 отзывов
Дополнительные услуги 88%
2 154 оценок
Комплектации 89%
1 535 оценок
Планировки 90%
2 484 оценок
Проекты 93%
2 231 оценок
С
Володя Розанов02/25/2026 г.
Проект выбрали с эркером. Жена давно мечтала. Собрали эту часть особенно тщательно, видно, что сложный узел, но подогнано все идеально.
С
Мира Парамонова01/27/2026 г.
Было чувство, что мы вечно выбираем — то размер, то планировку. Консультант Ирина проявила ангельское терпение, десять раз всё пересчитывала с нами. В итоге остановились на 9х9 с эркером, и это именно то, что надо.
С
Юлия03/13/2025 г.
Выражаю сердечную признательность мастерам, которые с большой любовью и знанием дела собирали наш каркасный дом, проявив истинный профессионализм и заботу о качестве каждого соединения, ведь теперь в доме царит особая атмосфера, а все гости отмечают его изумительный внешний вид и удобную планировку.
Отзывы из Google Карт
4.8
46 отзывов
Дополнительные услуги 88%
2 154 оценок
Комплектации 89%
1 535 оценок
Планировки 90%
2 484 оценок
Проекты 93%
2 231 оценок
С
Демьян Медейко05/11/2026 г.
Работали зимой, я переживал, но бригадир сказал, что для профиля это не проблема. И правда, собрали коробку дома 7,5х8 за две недели, фундамент сделали по технологии для низких температур. Никаких косяков.
С
Камилла Ф.04/02/2026 г.
После подписания договора прошла неделя тишины, я уже начала волноваться. Оказалось, менеджер был в отпуске, а передать дело забыли. Позвонила на общий номер, быстро подключили другого специалиста, извинились. Дальше всё пошло как по маслу, но осадочек, конечно, остался.
С
Ксюша В.07/14/2025 г.
Я ценю в работе людей не только результат, но и процесс, и хочу сказать, что бригада от "Брус дома" работала на участке не только быстро, но и очень чисто, не оставляя после себя горы мусора, что большая редкость.
Отзывы из 2гис
4.9
48 отзывов
Дополнительные услуги 88%
2 154 оценок
Комплектации 89%
1 535 оценок
Планировки 90%
2 484 оценок
Проекты 93%
2 231 оценок
С
Иван03/30/2026 г.
Понравилось, что принимали поэтапно с подписанием актов. Дом 6х8 с вторым светом и эркером — моя гордость. Из минусов: задерживали доставку черепицы на две недели, пришлось конопатить без крыши под пленкой.
С
Ярослава Второва04/28/2025 г.
Дом построен просто замечательно — видна забота о качестве на каждом этапе. От проектирования до финишной отделки всё было сделано профессионально и с пониманием наших потребностей. Живём с удовольствием.


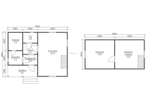
Проект №1 Каркасная баня 6х8

каркас из строганой доски
Создайте свой план для этого проекта
и отправьте его нам на расчет в один клик.
Каркасный дом (150 мм) 6х8 Толщина утепления 150 мм 2071900 Заказать
Каркасный дом (200 мм) 6х8 Толщина утепления 200 мм 2291900 Заказать

Пользуйтесь нашим планировщиком, чтобы получить индивидуальную планировку.

При помощи планировщика вы имеете возможность создать эскизы, планы, схемы, чертежи бани с мансардой, эркером, с несколькими спальнями. В результате получится проект с современной планировкой, который полностью отвечает вашим требованиям.

Создавая проект своей бани, вы имеете возможность выбрать вид кровли. Вашу крышу можно сделать четырехскатной, двускатной и вальмовой. Двухскатная крыша - самая востребована в малометражных постройках.

Востребованные размеры бань на сегодняшний день: мини - до 36 квадратных метров (в основном, одноэтажные); компактные - от 36 до 70 квадратных метров (обычно двухэтажные); большие - начиная от 70м2 и свыше.


Наши работы

Перейти в галерею


Комплектация

Площадь застройки: 48 м2
Длина: 6 м
Ширина: 8 м
Общая площадь: 73 м2
Исполнение Под ключ (с отделкой)
Фундамент Свайно-винтовой или ж/б сваи (рассчитываются отдельно).
Гидроизоляция фундамента Рубероид в два слоя.
Основание (обвязка) Из обрезного бруса 150х150 мм. 150х200 мм. согласно выбранной толщине утепления. Торцевая строганая доска камерной сушки 45х145/45х195+/-5 мм. Обработка антисептиком.
Цокольное перекрытие Строганая доска камерной сушки 45х145/45х195+/-5 мм. с шагом 590 мм. Обработка антисептиком.
Пол черновой Обрезная доска камерной сушки 20х100 мм.
Влаго-ветрозащита чернового пола Мембрана Ондутис А100.
Внешние стены Стойки каркаса из строганой доски камерной сушки 45х145/45х195+/-5 мм. с шагом 590 мм. Верхняя двойная и нижняя обвязки из строганой доски камерной сушки 45х145/45х195+/-5 мм. Разгрузочный ригель из строганой доски 45х145+/-5 мм. Укосины из строганой доски 20х95 мм.
Перегородки Стойки каркаса из строганой доски камерной сушки 45х95+/-5 мм. с шагом 590 мм. Верхняя двойная и нижняя обвязки из строганой доски 45х95+/-5 мм. Разгрузочный ригель из строганой доски камерной сушки 45х145+/-5 мм. Укосины из строганой доски камерной сушки 20х95 мм.
Сборка каркаса На гвозди.
Высота от пола до потолка Баня одноэтажная: 2,5 м. Баня с мансардой: 1-ый этаж- 2,5 м.
2-ой этаж (мансарда)- 2,3 м.
Баня в полтора и два этажа:
1-ый этаж 2,5 м.
2-ой этаж 2,4 м. в полутораэтажной бане.
2,5 м. в двухэтажной бане.
Внешняя отделка стен Имитация бруса камерной сушки, сорт АВ, толщиной 17 мм. Монтаж через строганый брусок камерной сушки 45х45+/-5 мм. (вентилируемый фасад). Влаго-ветрозащитная мембрана- Ондутис А100.
Внутренняя отделка стен, перегородок Евровагонка камерной сушки, сорт АВ, толщиной 12,5 мм. по строганой рейке 20х40+/-5 мм. либо ГКЛ 12,5 мм.
Отделка потолка Евровагонка камерной сушки, сорт АВ, толщиной 12,5 мм. по строганой рейке 20х40+/-5 мм. либо ГКЛ 12,5 мм.
Пол чистовой Шпунтованная доска камерной сушки толщиной 35-36 мм. сорт АВ. по строганой рейке 20х40+/-5 мм. либо шпунтованная ДСП 16 мм. по разряженной обрешётке из строганой доски камерной сушки 20х95+/-5 мм.
Утепление (пол, потолок) Минеральная вата Knauf 150/200 мм. согласно выбранной толщине утепления.
Утепление стен Плитный утеплитель Rockwool, толщиной 150/200 мм. согласно выбранной толщине утепления.
Звукоизоляция перегородок Плитный утеплитель Rockwool, толщиной 100 мм.
Пароизоляция (стены, перегородки, пол, потолок) Плёнка Ондутис R70. Дополнительная герметизация нахлёстов/примыканий пароизоляционной плёнки клейкой лентой Delta.
Отделка парной Отделка осиновой вагонкой камерной сушки, сорт АВ по фольге, через строганую рейку 20х40+/-5 мм. (вентиляционный зазор). Установка пологов из осины.
Окна Двухкамерные стеклопакеты ПВХ белого цвета, профиль 60 мм. В комплекте: отливы, подоконники, москитные сетки.
Двери Входная- металлическая, утеплённая (Россия). Межкомнатные- филёнчатые. В душевую/парную- клиновые (банные).
Наличники на окна и двери Наличник деревянный, строганый, камерной сушки 70-90 мм. с двух сторон.
Лестница (при наличии второго этажа) Деревянная, одно или двухмаршевая. Перила- заводские резные, балясины- заводские точеные, устанавливаются стартовые точёные столбы. Ступени 40х200 мм. Тетива лестницы- 90х140 мм.
Крыша Двускатная, ломаная или вальмовая в соответствии с проектом.
Стропильная система Выполнена из строганой доски камерной сушки 45х145/45х195+/-5 мм. Шаг установки стропил 590 мм.
Обрешётка Выполняется из строганой доски камерной сушки толщиной 20х95+/-5 мм. Шаг крепления обрешетки 350 мм. Контробрешётка выполняется из строганого бруска камерной сушки 45х45+/-5 мм. Крепится по стропилам (вентиляционный зазор).
Подкровельная мембрана Ондутис А100
Кровельное покрытие (на выбор) Металлочерепица 0,45 мм. Цвет на выбор.
Фронтоны (при наличии) Каркас из строганой доски камерной сушки 45х145/45х195+/-5 мм. Обшиваются имитацией бруса камерной сушки, сорт АВ, толщиной 17 мм. Монтаж через строганый брусок камерной сушки 45х45+/-5 мм. (вентилируемый фасад). Влаго-ветрозащитная мембрана- Ондутис А100. Монтаж вентиляционных решёток.
Свесы крыши Ширина 400 мм. Подшиваются вагонкой камерной сушки, сорт АВ.
Терраса/балкон (при наличии) Устанавливаются опорные столбы из строганного бруса камерной сушки 140х140 мм.
Отделка потолка террасы/балкона Евровагонка камерной сушки толщиной 12,5 мм. сорт АВ.
Пол террасы/балкона Шпунтованная доска камерной сушки толщиной 35-36 мм. сорт АВ.
Ограждение террасы/балкона Перила- строганая доска. Балясины- точеные, фигурные. Либо ограждение в скандинавском стиле. Устанавливаются ступени у входа.
Допуск на геометрические параметры Составляет +/- 50 мм по длине с каждой стороны.
Допускается стыковка имитации бруса, вагонки и половой доски По всему периметру стен бани (если ширина и длина бани более 6,0 метров). Вагонки и доски пола в каждой отдельной комнате.
Допуски по имитации бруса, вагонке, доске +/- 5 мм.
В стоимость включена Доставка комплекта материала в радиусе 500 км. от г. Пестова Новгородской области и сборка дома на вашем участке.
Гарантия 5 лет.
Печь По запросу.
Бытовка строительная 2,0х3,0 м. каркасно-щитовая. Стоимость 23000 руб. Остаётся на участке Заказчика.
Туалет 1,0х1,0 м. каркасно-щитовой. Стоимость 12000 руб. Остаётся на участке Заказчика.
Генератор Стоимость аренды на весь срок строительства 15000 руб. ГСМ за счёт Заказчика.

Строительство каркасной бани выполняется в 2-х вариантах: под ключ и под усадку, когда дом будет отстаиваться некоторое время.

В период холодов стоит строить в мороз, чтобы каркас не успел промокнуть, в летний сезон - не под дождем.

Подходящими для дачи или сада стали баньки на винтовых сваях, на нашем сайте имеются одноэтажные и полуторатажные варианты.

Имеется два вида утепления: 150 мм и 200 мм. Каркасные бани с утеплителем 200 мм получаются теплее, но стоят дороже.

Дополнительные услуги



Популярные проекты


Дома из бруса с таррасой Каркасные дома 8х9 Каркасные дома 9х10
Дома из бруса

Заказать или задать вопрос



Заказать или задать вопрос

Заказать звонок